香溢江南排屋带院子苍梧双学校纯毛坯房单价不到一万 530

15727元/㎡

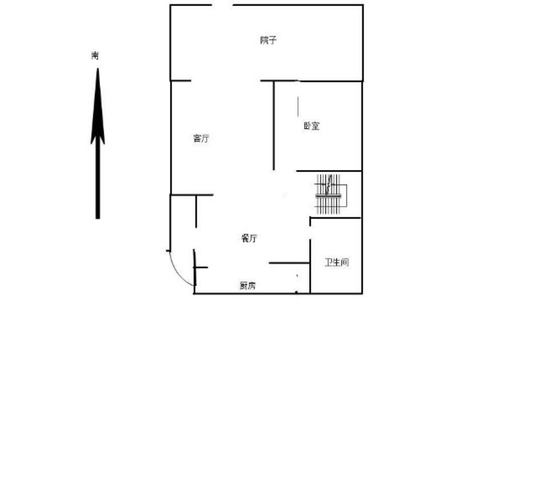
4室2厅3卫

户型

337㎡

建筑面积

南向

朝向

毛坯

装修

2015年

建造年代

1层

共5层

住宅

房产类别

商品房

产权类型

70年

产权年限

-

有无电梯
房源动态
  • 100%

    看房处理

  • 2764

    已浏览

  • 0

    已预约

  • 2018-12-28

    最近登录

描述

核心卖点 
1、户型方正,全明通透的户型,每个房间都有窗户,是冬暖夏凉的绝版户型。
2、客厅设计的比较合理,没有一丝浪费的空间。
3、卫生间比较大,采光和通透性都很不错
            
            
        
             本房业主相当诚心出售,价格可以小刀,但空间不是太大 
 房主因另有发展,想卖了这套去外地重新购房
        
    小区环境优雅,配套非常成熟,周边交通便利,居住舒适。
            
            
        
            本人承诺 
 1.所推荐在房源信息及图片均为真实!! 
 2.与房东已有电话沟通及议价!! 
 3.您来电后当天必备3-5套房源当场免费带看!! 
 4.服务全面,全程免费带看,直到合同签完,买家拿到房产证,卖家拿到钱! 
 后续问题随时联系我们!

图片
猜您喜欢
免责声明:房源信息由网站用户提供,其真实性、合法性由信息提供者负责,最终以政府部门登记备案为准。本网站不声明或保证内容之正确性和可靠性,购买该房屋时,请谨慎核查。请您在签订合同之前,切勿支付任何形式的费用,以免上当受骗。
赵克博经纪人

电话:

15050948967
手机看房源
同小区房源