开成高尔夫别墅单价6500,198平130万有钥 130

6566元/㎡

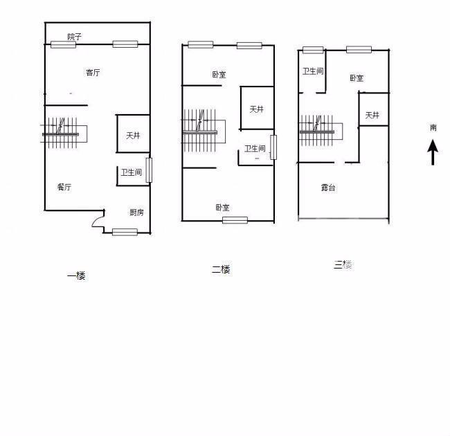
4室3厅2卫

户型

198㎡

建筑面积

南向

朝向

毛坯

装修

2012年

建造年代

1层

共3层

住宅

房产类别

商品房

产权类型

70年

产权年限

-

有无电梯
房源动态
  • 100%

    看房处理

  • 2153

    已浏览

  • 0

    已预约

  • 2018-11-23

    最近登录

描述

核心卖点 
一、本房描述:
1.学.区:学区未占用
2.税费:各自付税。
3.户型:四室3厅,全明通透,布局合理,没有任何浪费面积
4.采光:黄.金楼层,采光佳,前后无遮挡
5.产权:产权明晰无纠纷产权人能到场签署合同
6.装修:图片完全真实,可以按照图片参考
7.售房原因:诚心卖房
8.综合评估:属于本小区的市场行情价位,价位适中。本公司房源充足,另外有多套房源出售,没办法在网络上一一呈现,所以看房时候一定带您多看几套,来电也可以告知另外的类似房源。
                            业主诚心出售,房源真实报价,看好可以谈价。
                        小区环境优雅,配套非常成熟,周边交通便利,居住舒适。我们针对买方:1.绝无虚构;2.面积真实可靠,绝无浮夸;3.价格均为业主报价,真实有效;4.不赚取房款差价;5.不赚取税费差价;6.不赚取评估差价。自我介绍:  本着诚信服务的理念,我珍视每一份嘱托,不发布虚假房源、不虚报价格、不吃差价,一心一意只为圆您家的梦想!

图片
猜您喜欢
免责声明:房源信息由网站用户提供,其真实性、合法性由信息提供者负责,最终以政府部门登记备案为准。本网站不声明或保证内容之正确性和可靠性,购买该房屋时,请谨慎核查。请您在签订合同之前,切勿支付任何形式的费用,以免上当受骗。
赵克博经纪人

电话:

15050948967
手机看房源
同小区房源