急卖新出速销 景城 2居室精装修 送家具家电 65

7663元/㎡

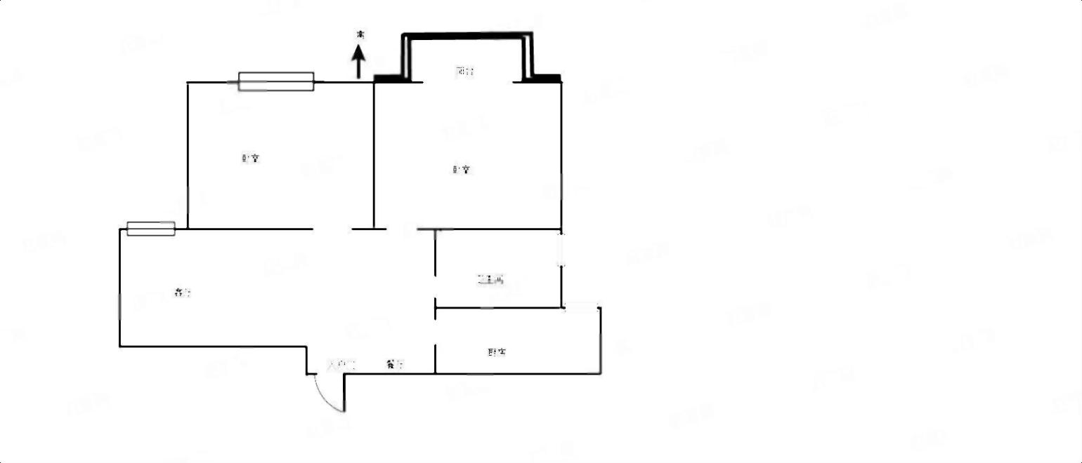
南北通透急售

2室2厅1卫

户型

86㎡

建筑面积

南向

朝向

精装修

装修

2015年

建造年代

12层

共16层

住宅

房产类别

商品房

产权类型

70年

产权年限

有无电梯
房源动态
  • 100%

    看房处理

  • 5003

    已浏览

  • 0

    已预约

  • 2024-07-21

    最近登录

描述

亲爱的顾客您好!感谢您光临我的网店。我会用专业,热情的服务给您匹配到适合您的房源! 下面给您详细介绍一下这套房子情况: 【小区介绍】:海客瀛洲位于,小区绿化率高,环境优美
【卖点】:总价低,性价比高,小区位置佳,得房率高
【房型】:此房,朝向:朝南,全明户型,采光极佳
【交通】:出行非常方便;
【业主心态】:房东诚心出售,具体可详谈 提供高品质房产流通服务,圆您家的梦想!我们随时准备为您付出更多~ 1.我向您承诺:房源真实有效,我们用专业服务期待您的来电咨询!
2.作为一名优秀经纪人,我给您承诺三不原则:不发虚假房源 不报虚假价格 不赚客户差价业主心态:你想买!他想卖!诚心联系!房东说大家都很忙!犹豫的结果是你的时间和金钱做为代价!小区环境优雅,配套非常成熟,周边交通便利,居住舒适。收取服务费:最高11000元(≤1%)专业不动产交易服务商免费看房.专业代办二手房过户,抵押,贷款(商业贷款,公积金贷款,组合贷款)等手续。自我推荐:本人从事二手房交易,具有丰富的从业经验。

图片
猜您喜欢
免责声明:房源信息由网站用户提供,其真实性、合法性由信息提供者负责,最终以政府部门登记备案为准。本网站不声明或保证内容之正确性和可靠性,购买该房屋时,请谨慎核查。请您在签订合同之前,切勿支付任何形式的费用,以免上当受骗。
周鑫经纪人

公司:

连云港安泰房产经纪有限公司

小区:

嘉泰城市花园 久和国际新城三期 核电专家二村

电话:

13605132871
手机看房源
同小区房源