实际面积360平 4室3厅 满五 景山秀水(西区 300

16484元/㎡

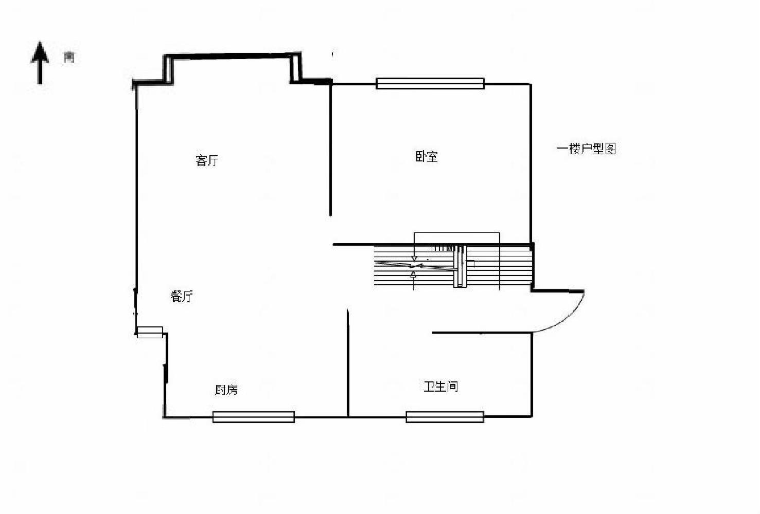
4室3厅2卫

户型

182㎡

建筑面积

南向

朝向

精装修

装修

2010年

建造年代

1层

共4层

住宅

房产类别

商品房

产权类型

70年

产权年限

有无电梯
房源动态
  • 100%

    看房处理

  • 5045

    已浏览

  • 0

    已预约

  • 2023-05-04

    最近登录

描述

房源卖点: 1:交通便利 2税费:各付各税  3楼层:中间楼层,全明通通,布局合理,没有任何浪面积  4产校:房产无纠产权人能到场签图台同  5装修:图片完全真实,可以按绍图片参考  6售房因:诚心卖房  7综合评估:属于本小区的市场行情价位,价位适中,本公司房源充足,另外有多处房在售,没力法 在同上一呈现,所以看  多看几参,来电也可以告知另外的类似房源业主心态:因家庭需要换置,特诚意出售此房,不会出现不卖,跳价,违约等情况  可随时约看实小区环境优雅,配套成熟,交通便利,居住舒适.为每一位选择我的客户提供高效,周到,热情的服务是我的宗旨。值得信赖,请相信我一定会全力以赴为选择我的客户在保证少打扰您的情况下,为您提供安全,高效,专业,愉快的房产买卖服务。 如果有关于房产方面的问题,欢迎随时咨询。

图片
猜您喜欢
免责声明:房源信息由网站用户提供,其真实性、合法性由信息提供者负责,最终以政府部门登记备案为准。本网站不声明或保证内容之正确性和可靠性,购买该房屋时,请谨慎核查。请您在签订合同之前,切勿支付任何形式的费用,以免上当受骗。
顾海洋经纪人

公司:

连云港儒房房地产经纪有限公司

门店:

不动产店

小区:

市政府 万达 东区 苍梧

电话:

15150997331
手机看房源
同小区房源