瑞景花园高铁商圈 74

8706元/㎡

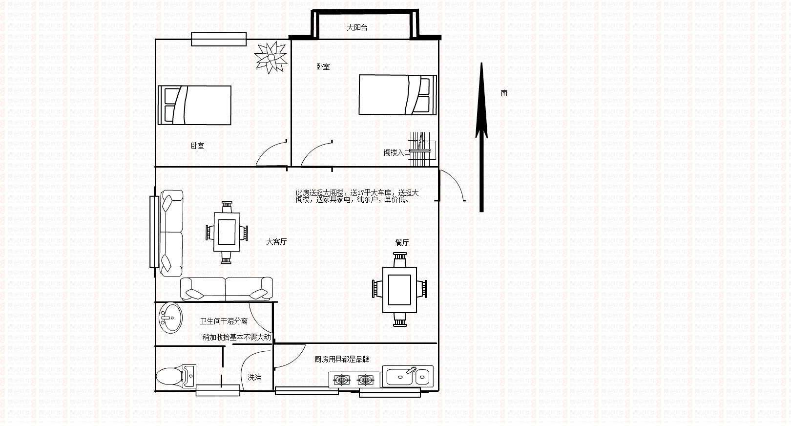
2室2厅1卫

户型

85㎡

建筑面积

南向

朝向

中等装修

装修

2004年

建造年代

6层

共6层

住宅

房产类别

商品房

产权类型

70年

产权年限

-

有无电梯
房源动态
  • 100%

    看房处理

  • 2500

    已浏览

  • 0

    已预约

  • 2018-07-28

    最近登录

描述

高铁商圈,六楼送大阁楼,送17平方大车库,送家具家电,此房纯东户,阳光美丽,南北通透,全小区单价最低,要不是房东换大房子,哪能忍痛割爱啊!房子钥匙在,随时可以看房子!看房电话18360680066

配套

水,电,气,床,电话,宽带,冰箱,空调,热水器

图片
猜您喜欢
免责声明:房源信息由网站用户提供,其真实性、合法性由信息提供者负责,最终以政府部门登记备案为准。本网站不声明或保证内容之正确性和可靠性,购买该房屋时,请谨慎核查。请您在签订合同之前,切勿支付任何形式的费用,以免上当受骗。
吴经理经纪人

电话:

18360680066
手机看房源
同小区房源